400 004 6868 別墅/大宅-尊貴熱線

作者: 譽巢裝飾 發表時間:2023-05-06
創造,或者醞釀未來的創造。
這是一種必要性:
幸福只能存在這種必要性得到滿足的時候。
——羅曼羅蘭

項目名稱 | 萬科·蘭喬圣菲
項目地點 | 廣東·佛山·順德
設計面積 | 450㎡
主案設計 | 陳煬
主筆設計丨林雪
設計風格 | 現代美式
業主需求
業主是一對年輕夫妻和3歲寶寶組成的幸福三口之家,他們鐘愛美式設計,希望風格大氣簡約又清爽舒適,盡可能減少裝飾的造型和繁雜感,基于此本案設計為奶油灰色調的美式現代風格,典雅而不失家的溫度。
理想生活全案
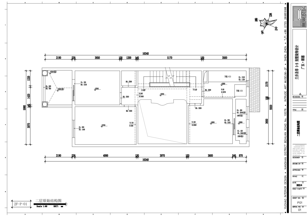
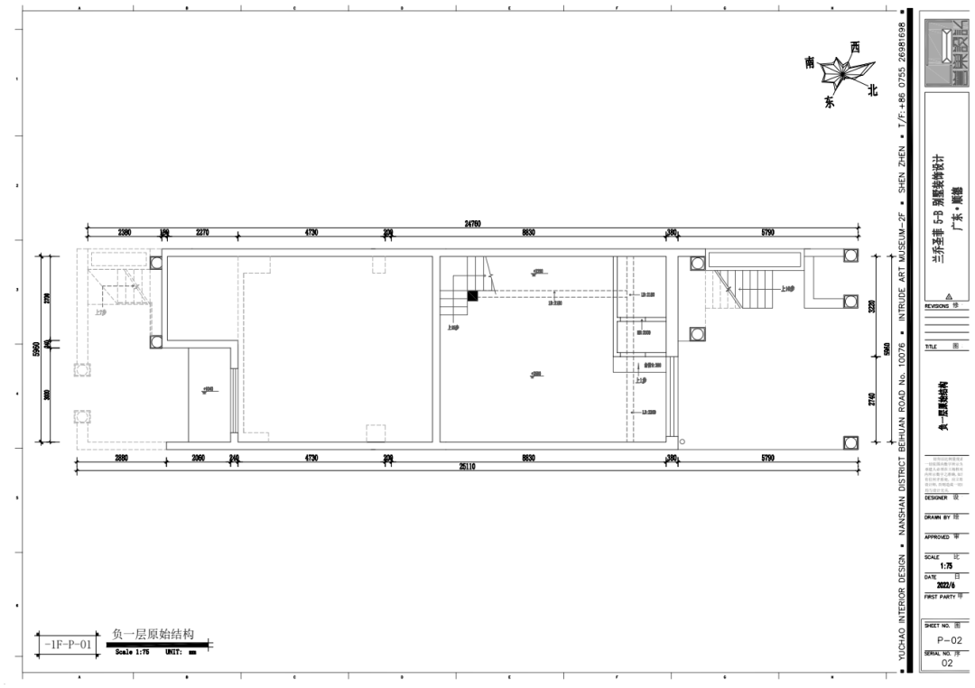
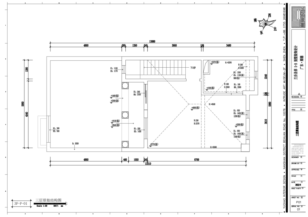
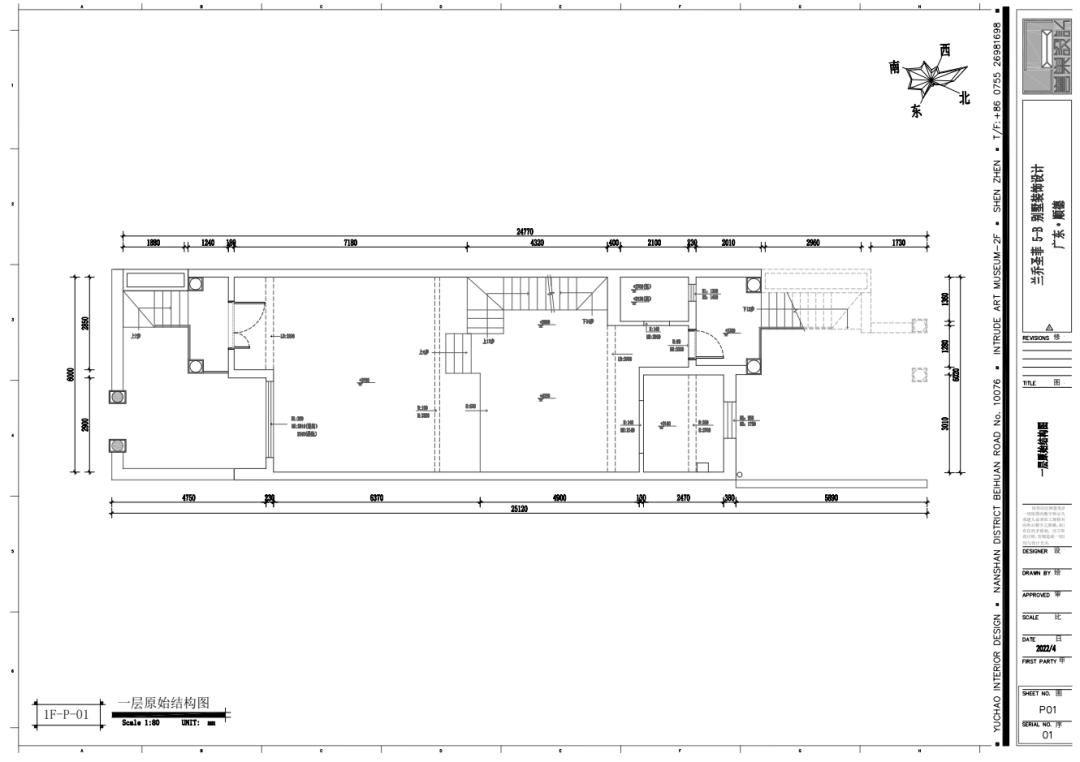
左右滑動,查看更多原始結構圖
原始結構
本戶型是比較狹長的聯排別墅,原始結構的通風采光都比較差,地下室空間有限,光線較暗,客廳空間寬敞但不夠方正,樓梯蹋步與前后門直通,主臥面積不夠大氣。
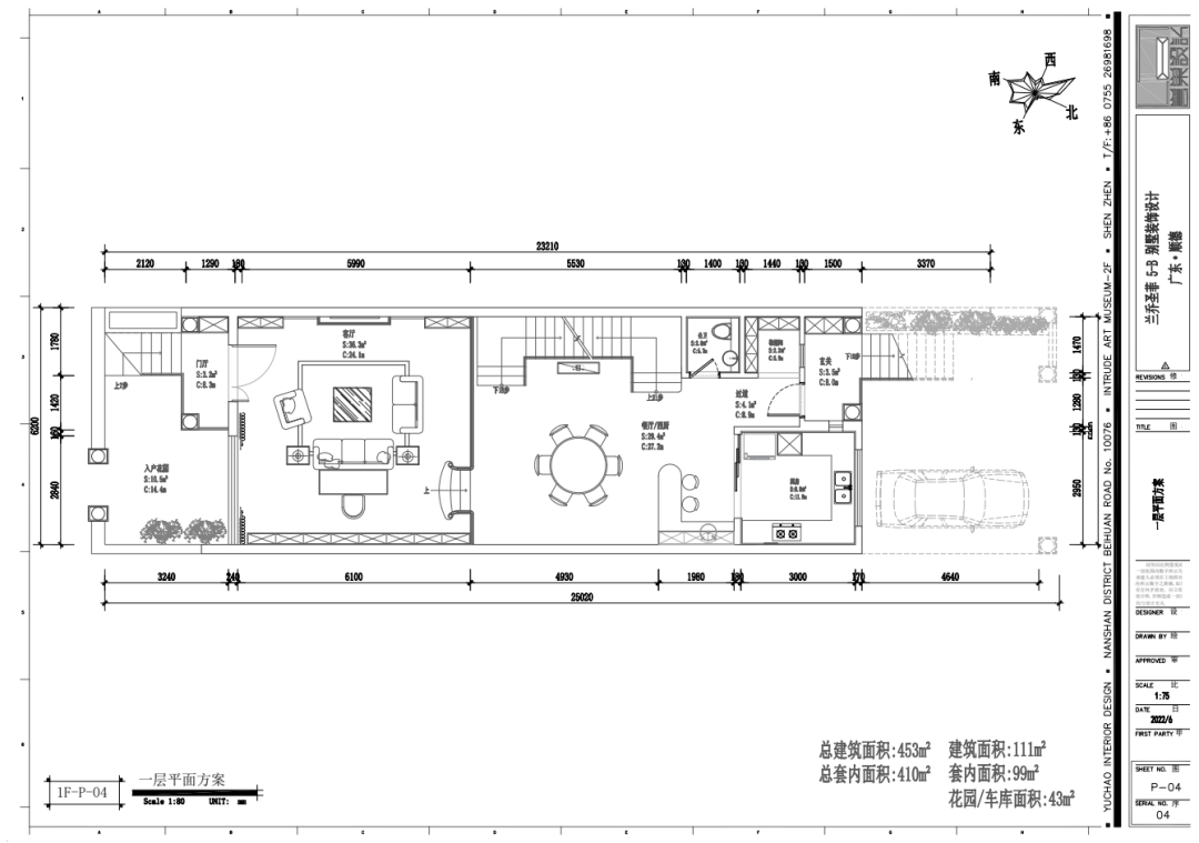
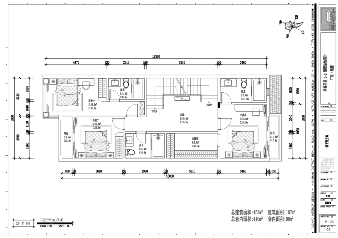
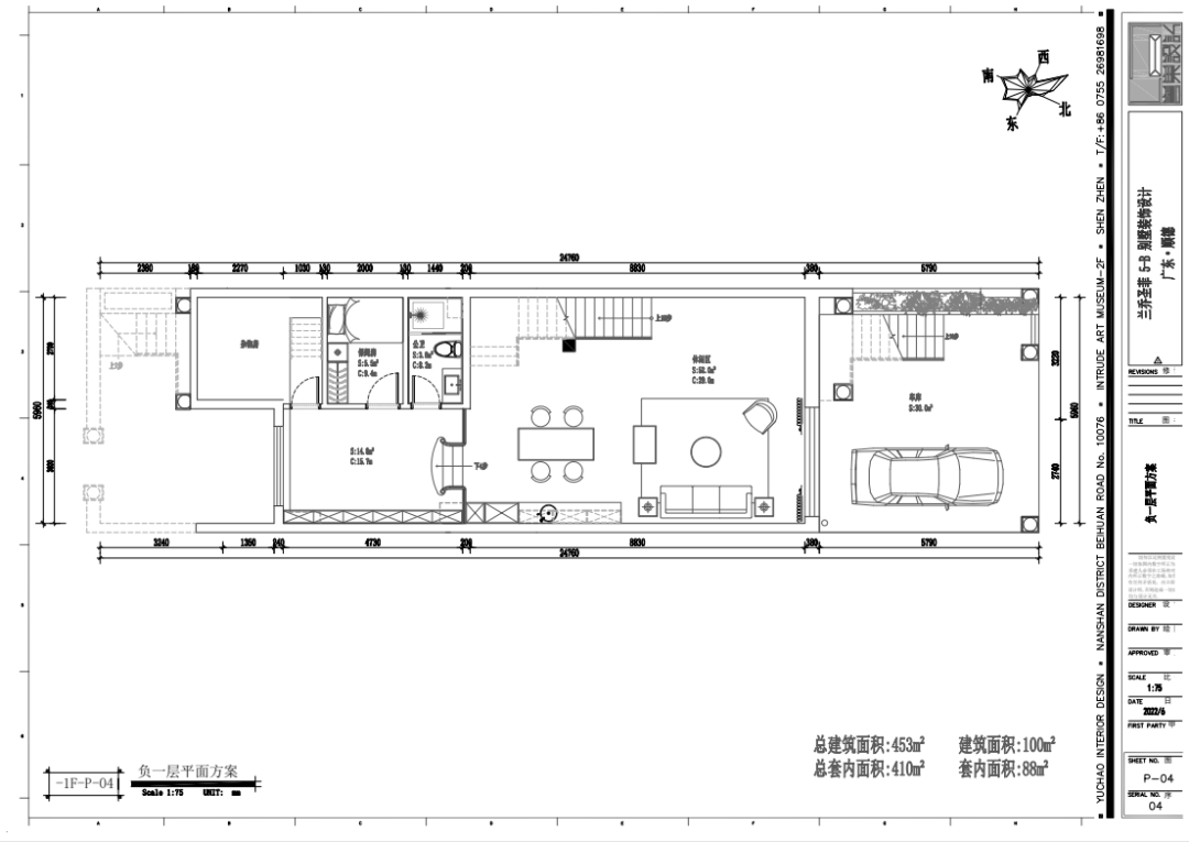
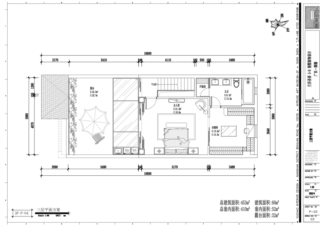
左右滑動,查看更多平面方案圖
平面方案
設計師考慮擴大地下室面積,解決通風采光儲物等問題,廚房外移,增加西廚空間,充分利用樓梯間公共區域,使臥室空間更加舒適。運用空間的多元性組合設計,空間多元化收納,功能分區明顯,適當留白處理將部分空間留給未來生活。
長按二維碼識別看全景
本案以白色為主調,襯以暖黃柔和燈光,
溫潤雅致的大理石通鋪一室,
使整個空間的設計渾然一體,
并賦予空間細膩而獨特的質感,
于無聲處訴說輕奢的生活格調。

簡潔自然的色調透露著溫柔,
讓生活方式具有趣味性和儀式感,
那就添一股奶油風的柔光濾鏡吧~

臥室更具簡約素雅格調,
床頭背景墻用了硬包和氛圍吊燈,
整體奶油灰色調加簡約線條裝飾,
輕松營造出美式輕奢格調,摒棄了繁瑣和奢華,
無主燈設計極為簡潔,
讓家居生活變成一種休閑式的浪漫。

主臥與衣帽間以隱藏式滑門相隔,
可開可合,頂天立地的整墻衣柜設計,
滿足日常空間收納,
大面積留白使空間更加開闊舒適,
搭配嵌入式梳妝臺,
精致的黃銅拉手,簡潔的美式線條,
溫柔又不失浪漫。
空間開闊有致,尺度豐盈,給居住者足夠的生活秩序。

兒童房選用了淡淡的灰藍色做背景,
搭配米色的軟裝,
落地窗使房間更加通透明亮,
暖陽與光影交錯,營造自然溫馨的休憩之所。

衛生間選用了魚肚白墻地一體,
沐浴區搭配蒂芙尼綠做背景點綴,
雙盆浴室柜與淋浴背景形成呼應,
整體空間清爽大氣,干凈整潔。
以美式為設計基調,
摒棄繁瑣與浮華,
將自然與空間結合,
平衡實用與美之間的關系,
為居住者打造溫馨典雅的浪漫家園。
主案設計師
陳煬

主筆設計師
林雪



985別墅裝飾全案服務商
客戶滿意度≥98%
項目還原度≥95%
電話:400-004-6868
譽巢別墅裝飾?深圳南山設計院
地址:深圳南山區北環大道10076號譽巢文化創意園
譽巢別墅裝飾?深圳龍崗設計院
地址:深圳市龍崗區黃閣北路天安數碼城1棟B座803
譽巢別墅裝飾?廣東順德設計院
地址:佛山市順德區大良街道逢沙村
智城路5號拔萃科技大廈10樓06.07單元
譽巢別墅裝飾?廣東惠陽設計院
地址:廣東省惠州市惠陽區白云二路誠杰壹中心 A棟
1316-1319室
譽巢別墅裝飾?廣東珠海設計院
地址:廣東珠海市香洲區粵海中路森宇富通1座1503
為了你的權益,你的隱私將被嚴格保密

每天限定3個名額

30天內有128人預約成功
您的府邸面積(單選)